„Remont łazienek w segmencie B, wymiana instalacji wodno-kanalizacyjnej w klasach segmentu D w budynku Szkoły Podstawowej Nr 23 przy ul. Walecznych 20 w Płocku”
Data: 2020-05-19
Dokumenty:
- Dokumentacja/budowlana/Część opisowa seg. B.pdf 2020-05-11 08:02:18
- Dokumentacja/budowlana/Część opisowa.pdf 2020-05-11 08:04:19
- Dokumentacja/budowlana/Decyzja - pozwolenie na budową.pdf 2020-05-11 12:01:31
- Dokumentacja/budowlana/Plan sytuacyjny.jpg 2020-05-11 08:04:19
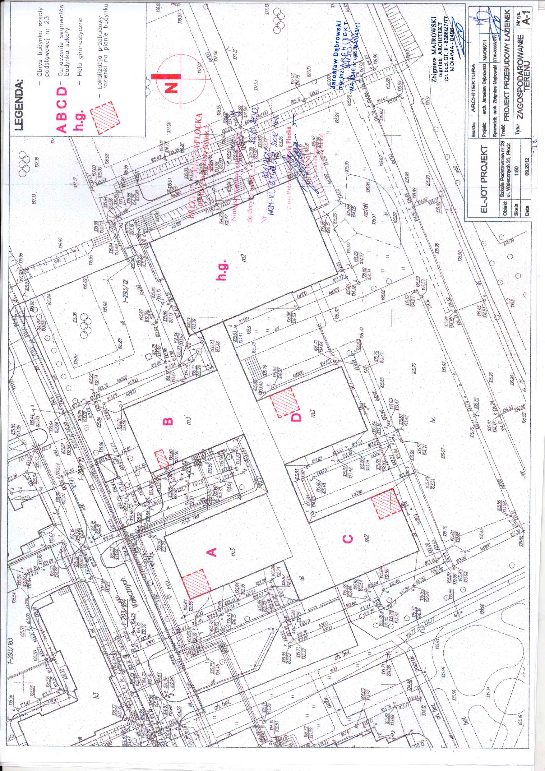
- Dokumentacja/budowlana/Rys. A-0 - zagosp. terenu.pdf 2020-05-11 08:02:48
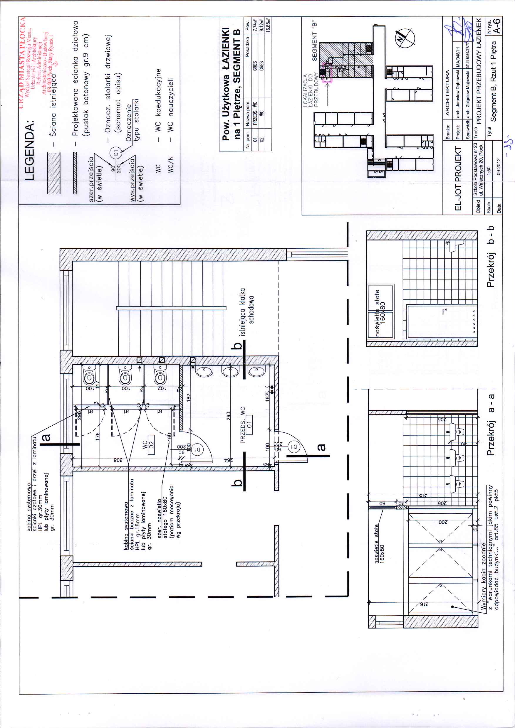
- Dokumentacja/budowlana/Rys. A-1- seg. B rzut parteru.pdf 2020-05-11 08:02:58
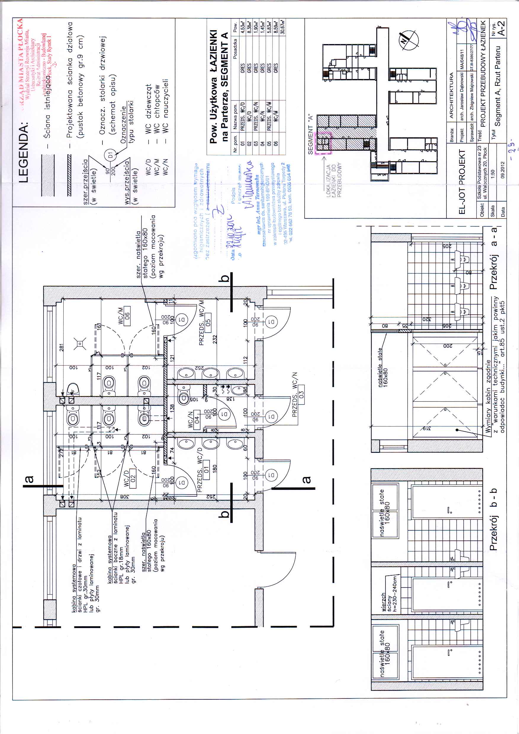
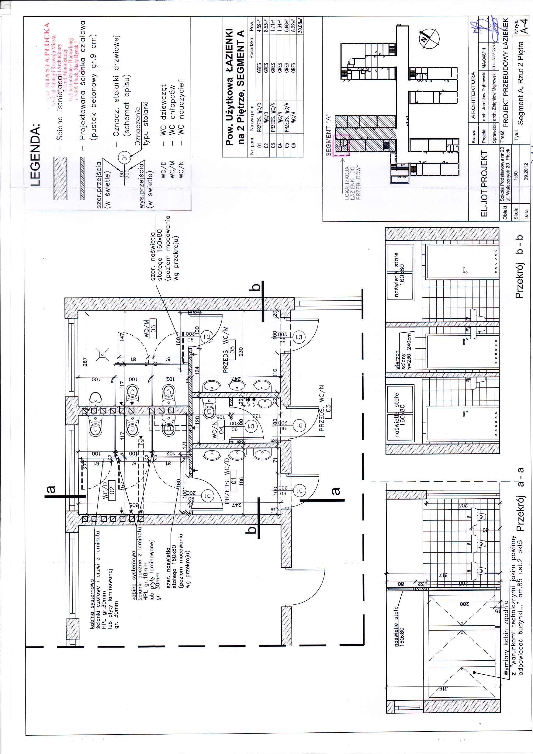
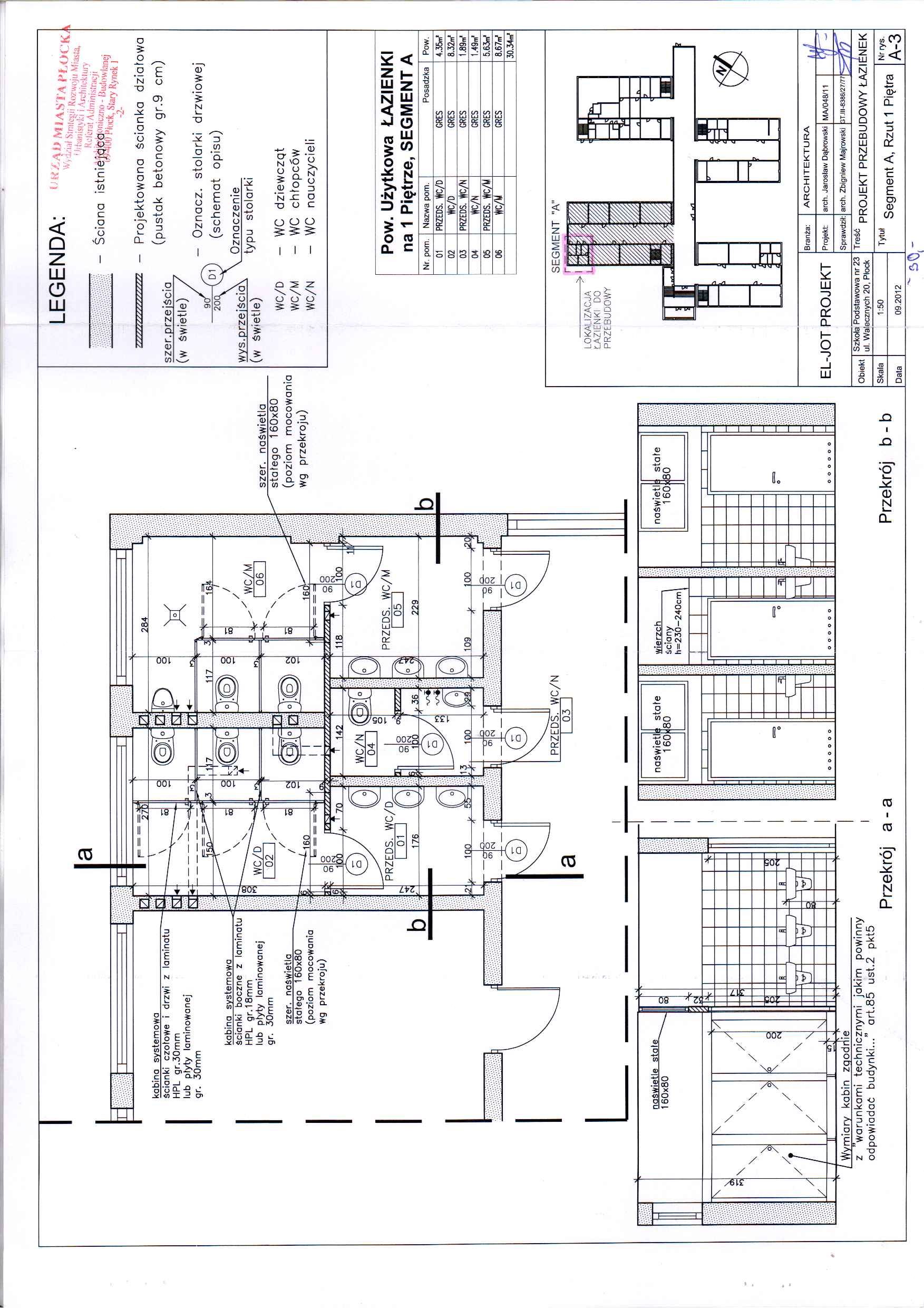
- Dokumentacja/budowlana/Rys. A-2 - seg. b Rzut 1 piętra.pdf 2020-05-11 08:03:02
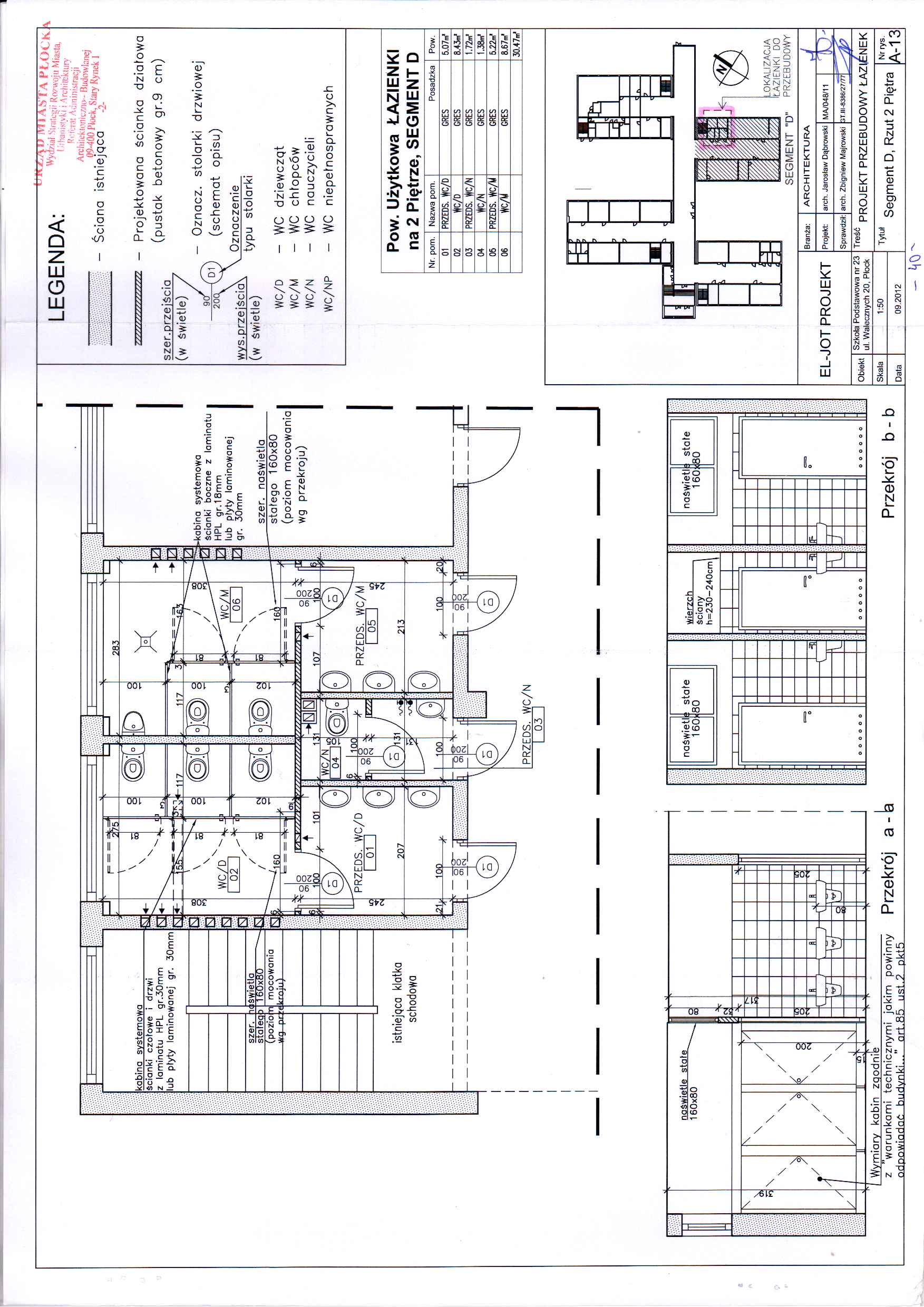
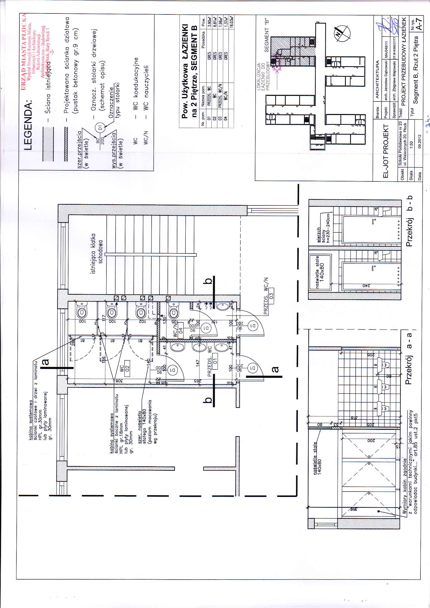
- Dokumentacja/budowlana/Rys. A-3 seg. B rzut 2 piętra.pdf 2020-05-11 08:03:08
- Dokumentacja/budowlana/Rys. IN-2 - Inwentaryzacja Rzut parteru.pdf 2020-05-11 08:04:20
- Dokumentacja/budowlana/Rys. IN-3 - Inwentaryzacja Rzut I piętra.pdf 2020-05-11 08:04:20
- Dokumentacja/budowlana/Rys. IN-4 Inwentaryzacja Rzut II piętra.pdf 2020-05-11 08:04:20
- Dokumentacja/budowlana/STWiORB - architektura.pdf 2020-05-11 08:06:10
- Dokumentacja/budowlana/Segment A - rzut I piętra.jpg 2020-05-11 08:04:20
- Dokumentacja/budowlana/Segment A - rzut II piętra.jpg 2020-05-11 08:04:20
- Dokumentacja/budowlana/Segment A - rzut parteru.jpg 2020-05-11 08:04:20
- Dokumentacja/budowlana/Segment B - rzut I piętra.jpg 2020-05-11 08:04:20
- Dokumentacja/budowlana/Segment B - rzut II piętra.jpg 2020-05-11 08:04:20
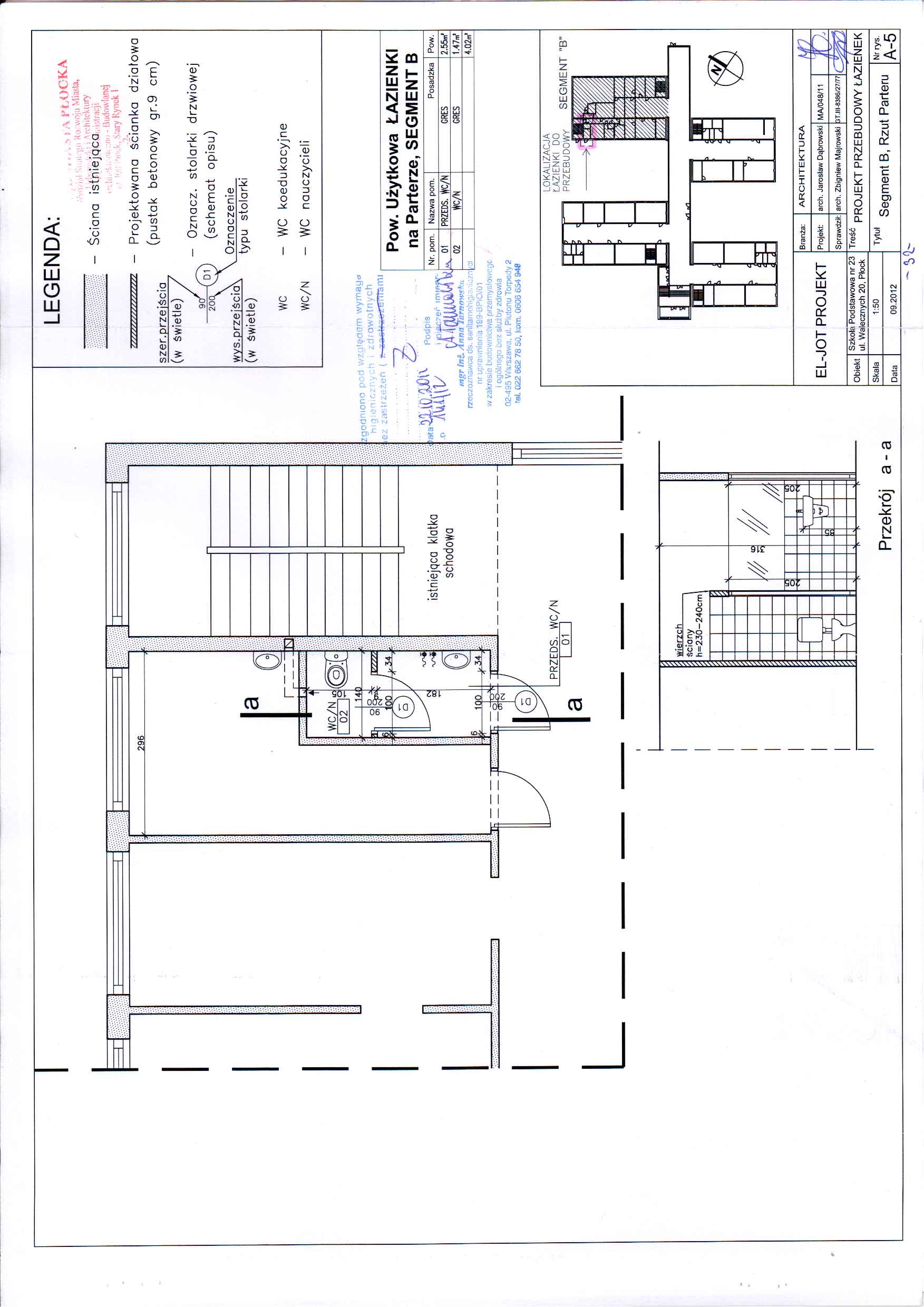
- Dokumentacja/budowlana/Segment B - rzut parteru.jpg 2020-05-11 08:04:21
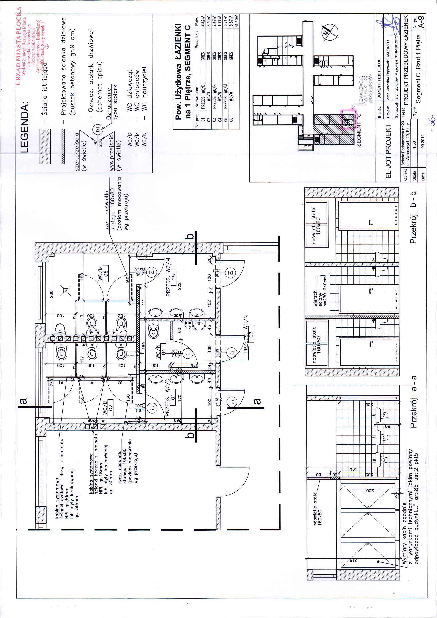
- Dokumentacja/budowlana/Segment C - rzut I piętra.jpg 2020-05-11 08:04:21
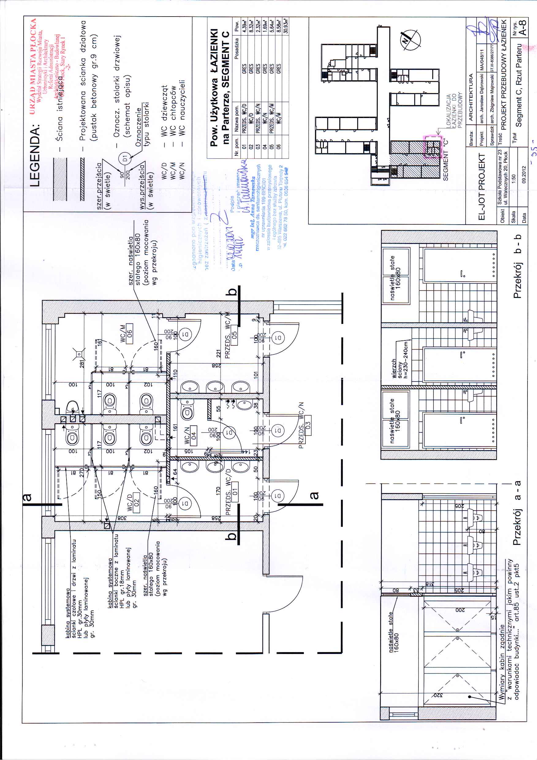
- Dokumentacja/budowlana/Segment C - rzut parteru.jpg 2020-05-11 08:04:21
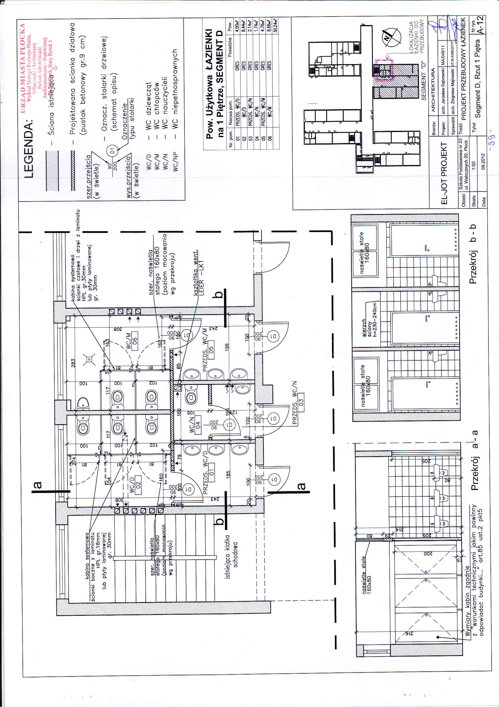
- Dokumentacja/budowlana/Segment D - rzut I piętra.jpg 2020-05-11 08:04:21
- Dokumentacja/budowlana/Segment D - rzut II piętra.jpg 2020-05-11 08:04:21
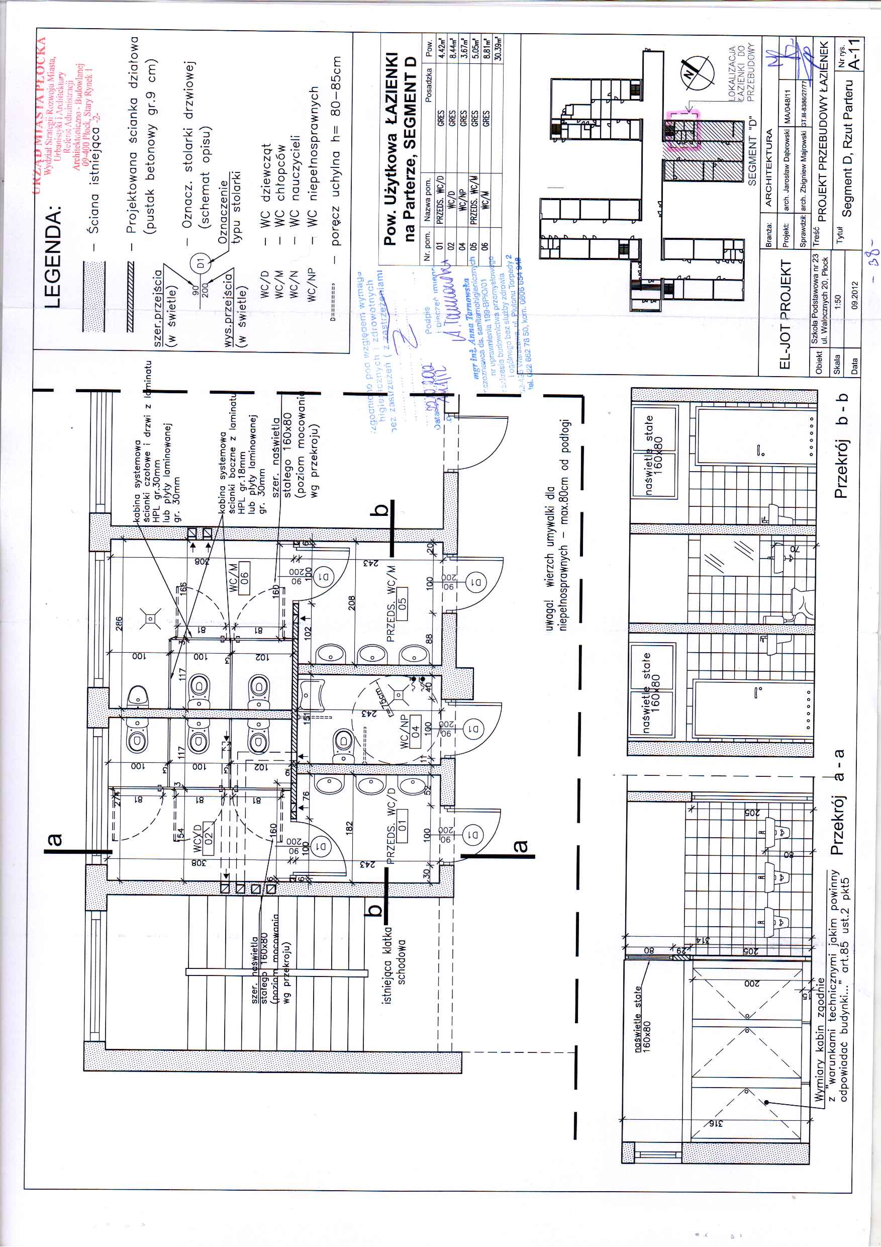
- Dokumentacja/budowlana/Segment D - rzut parteru.jpg 2020-05-11 08:05:51
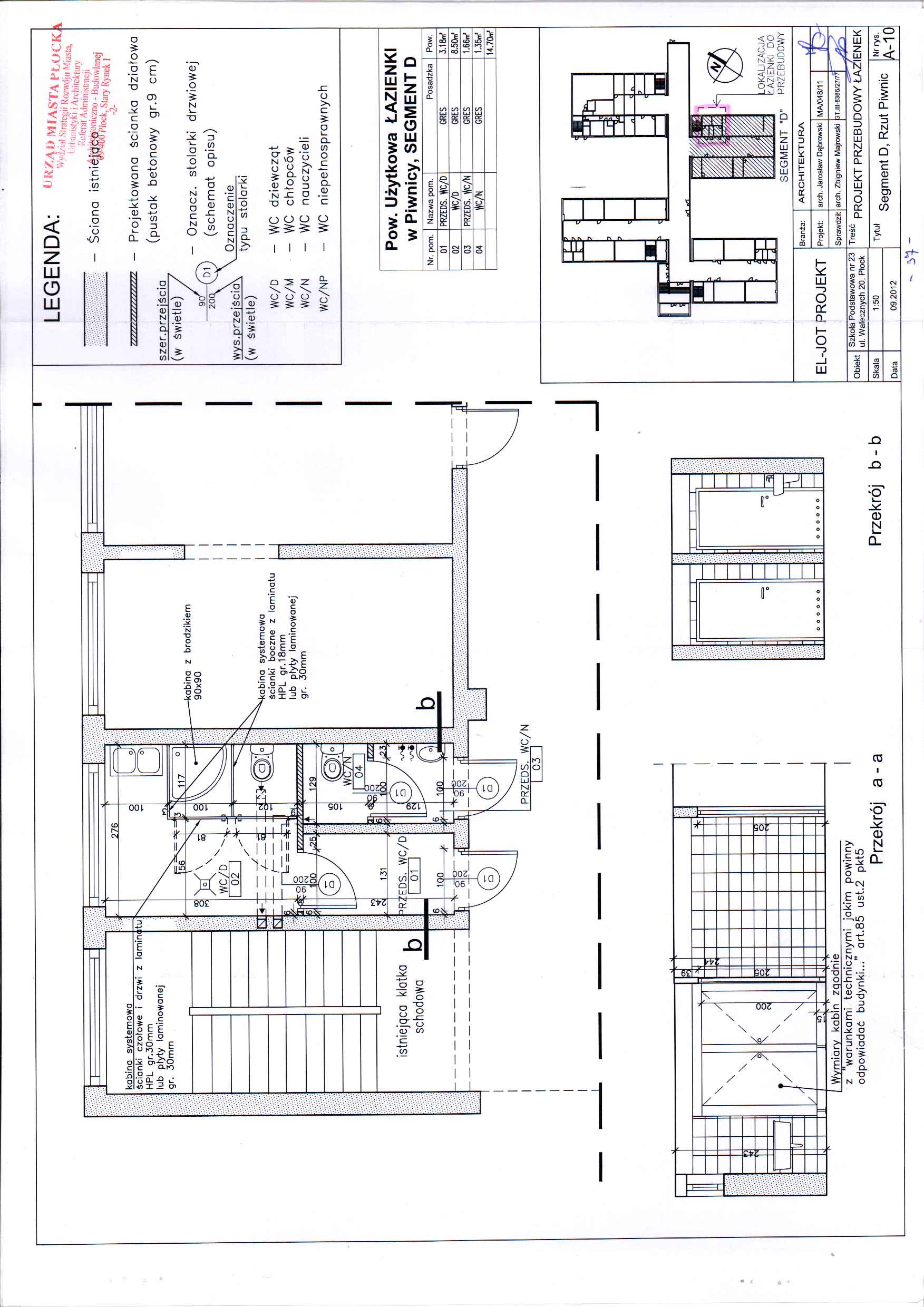
- Dokumentacja/budowlana/Segment D - rzut piwnic.jpg 2020-05-11 08:05:52
- Dokumentacja/budowlana/Zagospodarowanie terenu.jpg 2020-05-11 08:05:52
- Dokumentacja/elektryczna/Część opisowa.pdf 2020-05-11 09:36:44
- Dokumentacja/elektryczna/Inst. elektr. - segment A I piętror.jpg 2020-05-11 09:36:44
- Dokumentacja/elektryczna/Inst. elektr. - segment A II piętro.jpg 2020-05-11 09:36:44
- Dokumentacja/elektryczna/Inst. elektr. - segment A parter.jpg 2020-05-11 09:36:44
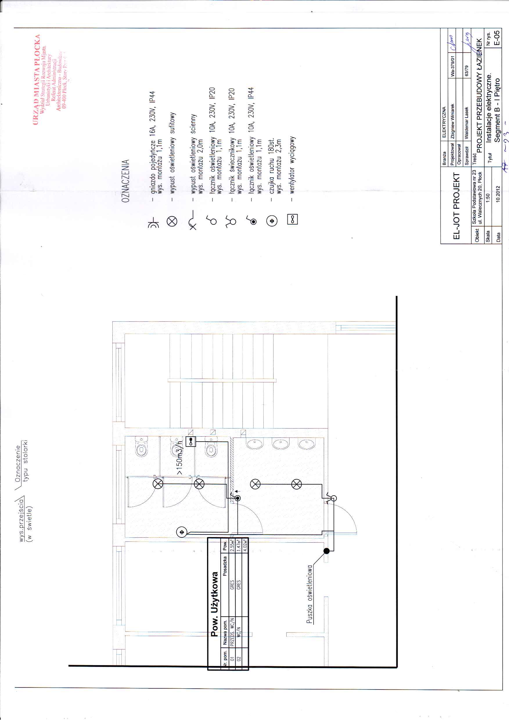
- Dokumentacja/elektryczna/Inst. elektr. - segment B I piętro.jpg 2020-05-11 09:36:44
- Dokumentacja/elektryczna/Inst. elektr. - segment B II piętro.jpg 2020-05-11 09:36:44
- Dokumentacja/elektryczna/Inst. elektr. - segment B parter.jpg 2020-05-11 09:36:44
- Dokumentacja/elektryczna/Inst. elektr. - segment C I piętro.jpg 2020-05-11 09:37:20
- Dokumentacja/elektryczna/Inst. elektr. - segment C parter.jpg 2020-05-11 09:37:20
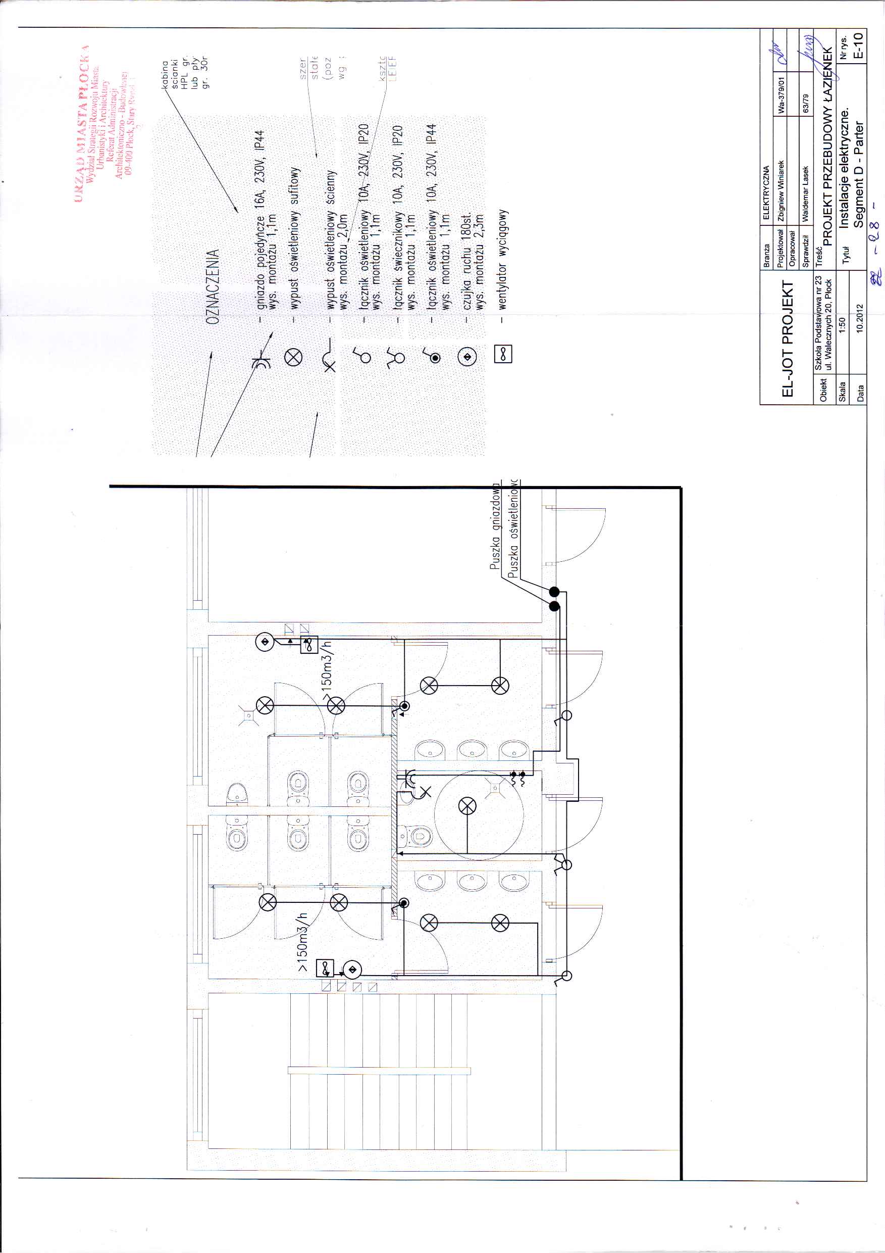
- Dokumentacja/elektryczna/Inst. elektr. - segment D I piętro.jpg 2020-05-11 09:37:20
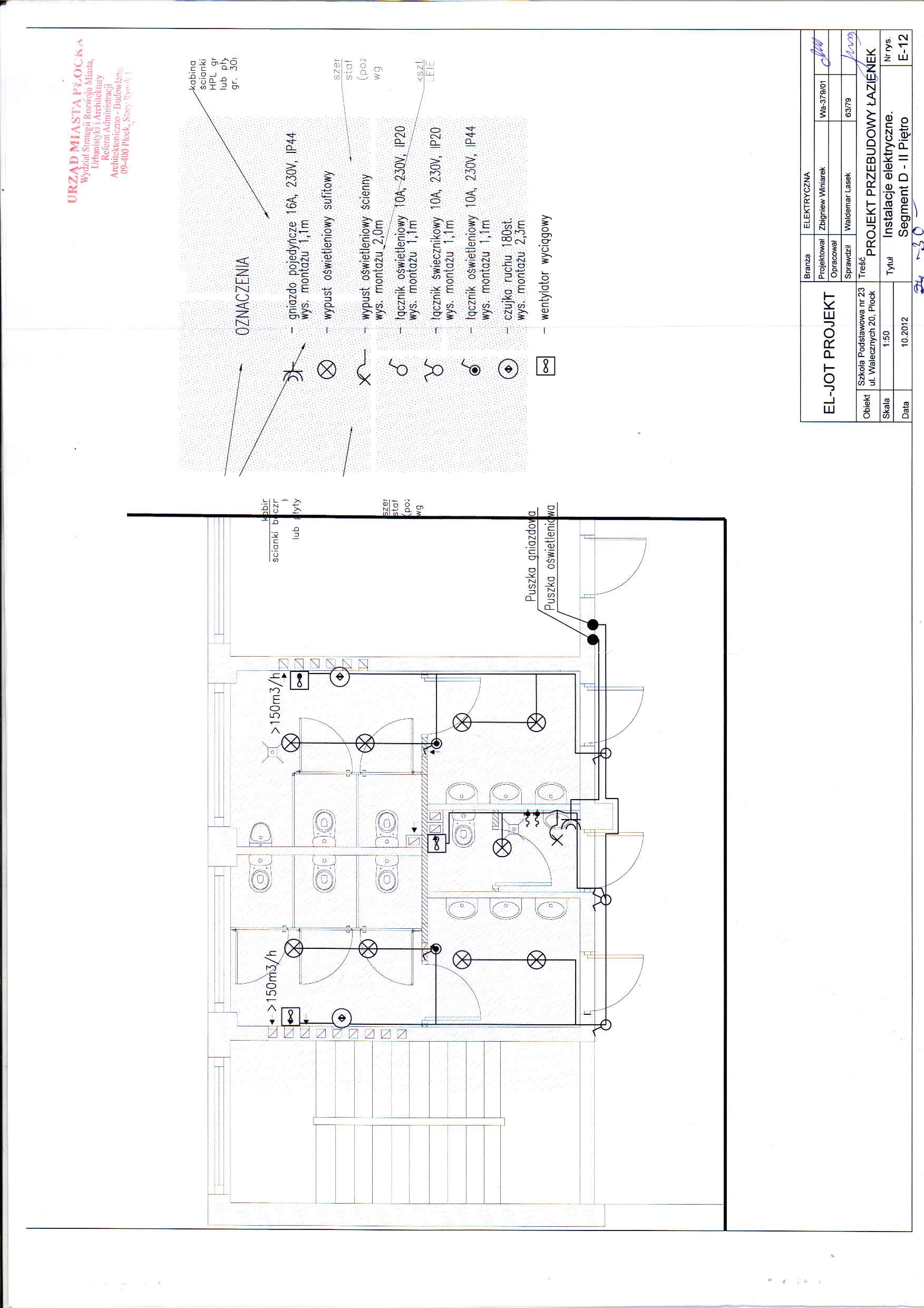
- Dokumentacja/elektryczna/Inst. elektr. - segment D II piętro.jpg 2020-05-11 09:37:20
- Dokumentacja/elektryczna/Inst. elektr. - segment D parter.jpg 2020-05-11 09:37:20
- Dokumentacja/elektryczna/Inst. elektr. - segmentD piwnica.jpg 2020-05-11 09:37:20
- Dokumentacja/elektryczna/Schemat sterowania wentylatorem wyciągowym.jpg 2020-05-11 09:37:20
- Dokumentacja/sanitarna/Segment B.7z 2020-05-11 11:57:52
- Dokumentacja/sanitarna/Segment B/C-1 - Rzut parteru seg. B -instalacja c.o..jpg 2020-05-11 10:55:15
- Dokumentacja/sanitarna/Segment B/C-2 - Rzut I piętra seg. B -instalacja c.o..jpg 2020-05-11 10:55:28
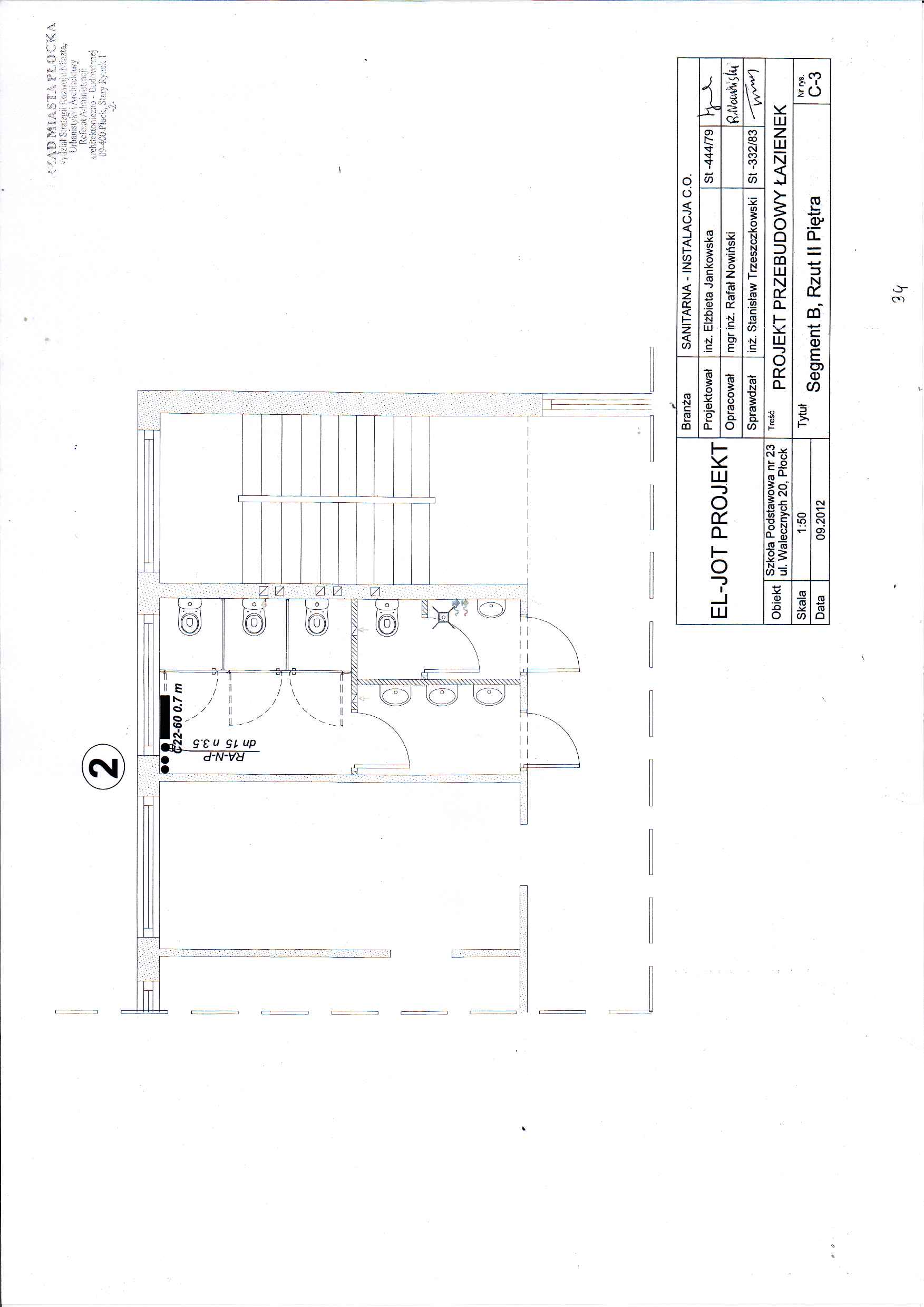
- Dokumentacja/sanitarna/Segment B/C-3 - Rzut II piętra seg B - instalacja c.o..jpg 2020-05-11 10:55:36
- Dokumentacja/sanitarna/Segment B/C-4 -seg B -rozwinięcie instalacji c.o..jpg 2020-05-11 10:55:48
- Dokumentacja/sanitarna/Segment B/K-1 - seg. B - rozwinięcie kanalizacji.jpg 2020-05-11 10:56:26
- Dokumentacja/sanitarna/Segment B/Projekt budowlany- seg. B - br. sanitarna - część opisowa.pdf 2020-05-11 10:53:07
- Dokumentacja/sanitarna/Segment B/V-1 - Rzut parteru seg. B -instalacja wentylacji.jpg 2020-05-11 10:57:10
- Dokumentacja/sanitarna/Segment B/V-2 - Rzut I pietra seg. B -instalacja wentylacji.jpg 2020-05-11 10:57:21
- Dokumentacja/sanitarna/Segment B/V-3 - Rzut II pietra seg. B -instalacja wentylacji.jpg 2020-05-11 10:57:31
- Dokumentacja/sanitarna/Segment B/W-1 - Rzut parteru seg. B - zw, cw, cyrkulacja.jpg 2020-05-11 10:53:57
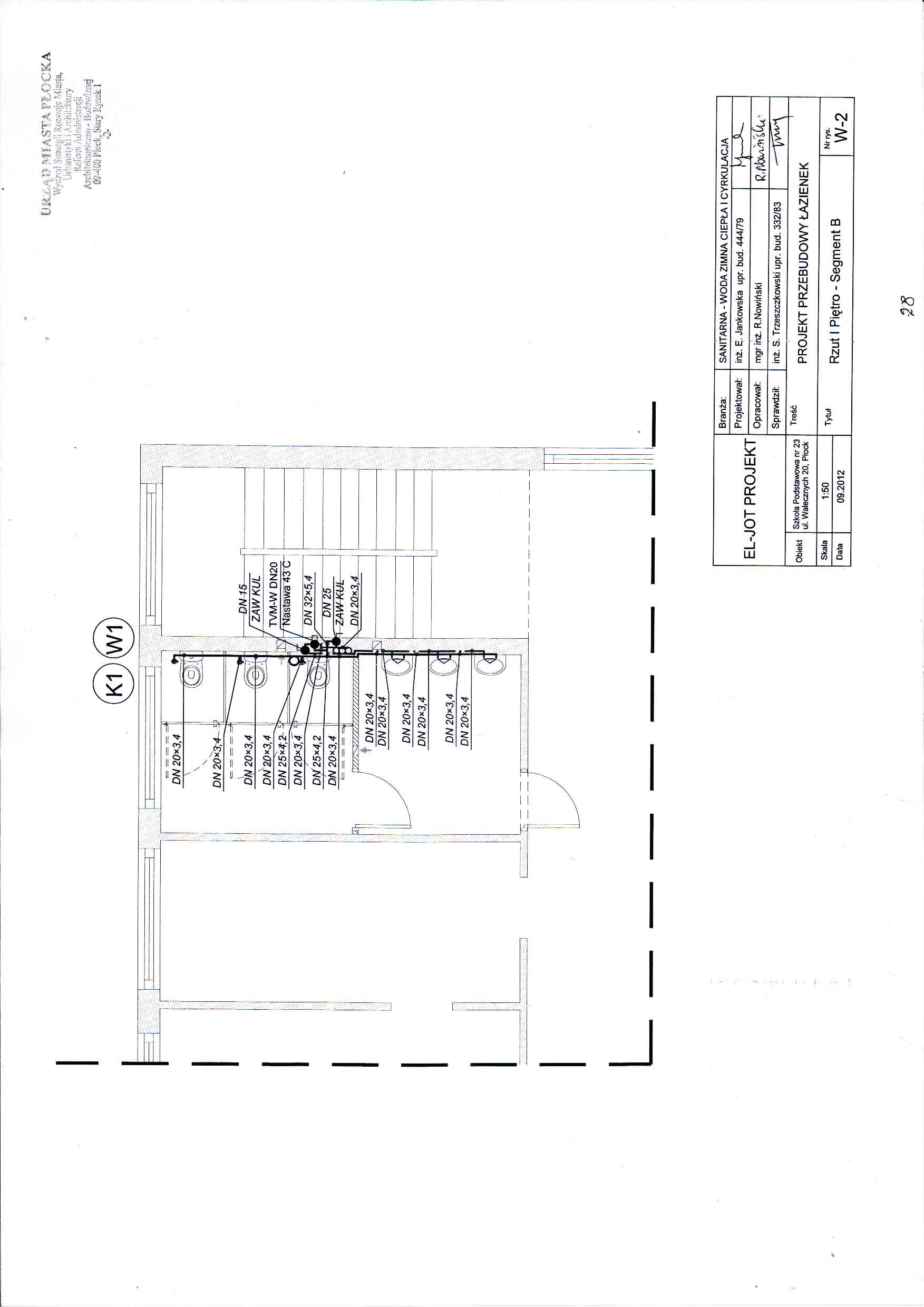
- Dokumentacja/sanitarna/Segment B/W-2 - Rzut I piętra seg B - instalacja zw,cw i cyrkulacji.jpg 2020-05-11 10:54:20
- Dokumentacja/sanitarna/Segment B/W-3 - Rzut II piętra seg B - instalacja zw,cw i cyrkulacji.jpg 2020-05-11 10:54:36
- Dokumentacja/sanitarna/Segment B/W-4 - seg. B - rozwinięcie instalacji zw, cw, cyrkucji.jpg 2020-05-11 10:54:51
- Dokumentacja/sanitarna/Segment D.7z 2020-05-11 11:57:52
- Dokumentacja/sanitarna/Segment D/Rys. 2 -Seg. D rzut parteru archiwalny - instalacje sanitarne SP23.pdf 2020-05-11 10:58:37
- Dokumentacja/sanitarna/Segment D/Rys. 3 - Seg. D rzut I piętra archiwalny - instalacje sanitarne SP23.pdf 2020-05-11 10:58:45
- Dokumentacja/sanitarna/Segment D/Rys. 4 - Deg. D rzut II piętra archiwalny - istalacje sanitarne - SP23.pdf 2020-05-11 10:58:53
- Dokumentacja/sanitarna/Segment D/Rys.1 -Seg. D rzut piwnic archiwalny instalacje sanitarne - segment D SP23.pdf 2020-05-11 10:58:27
- Przedmiary/PRZEDMIAR - SP nr 23 s. D -wym. inst. w klasach - 29.04.2020.pdf 2020-05-06 08:45:34
- Przedmiary/Przedmiar - budowl -przeb. łazienek seg B-2020 -01.05.pdf 2020-05-06 08:45:22
- Przedmiary/Przedmiar - elektr-Przebudowa łazienek SP 23 - seg.B.pdf 2020-05-06 08:46:40
- Przedmiary/SP nr 23 przedmiar segment D -wym. inst..pdf 2020-05-11 07:57:10
- Przedmiary/SPnr23 przedmiar - seg B łazienki.pdf 2020-05-11 07:57:32
- Rys. nr 1 do OPZ.pdf 2020-05-06 08:41:04
- STWiORB/STWiORB - architektura.pdf 2020-05-11 10:28:52
- STWiORB/STWiORB - instalacje elektryczne.pdf 2020-05-11 10:28:52
- STWiORB/STWiORB - instalacje sanitarne.pdf 2020-05-11 10:28:52
- Wniosek o zatwierdzenie materiałów - zał. nr. 8 do OPZ.doc 2020-05-19 14:28:27
- ZP400PodgladOpublikowanego.aspx.htm 2020-05-19 13:01:14
- ZP400PodgladOpublikowanego.aspx_pliki/ScriptResource.js 2020-05-19 13:01:12
- ZP400PodgladOpublikowanego.aspx_pliki/ScriptResource_002.js 2020-05-19 13:01:12
- ZP400PodgladOpublikowanego.aspx_pliki/WebResource.js 2020-05-19 13:01:12
- ZP400PodgladOpublikowanego.aspx_pliki/jquery-1.js 2020-05-19 13:01:12
- ZP400PodgladOpublikowanego.aspx_pliki/jquery.js 2020-05-19 13:01:12
- ZP400PodgladOpublikowanego.aspx_pliki/jquery_002.js 2020-05-19 13:01:12
- Załącznik do Programu Zapewnienia Jakości.odt 2020-05-19 14:28:27
- Zdjęcie wejścia do łazienek -II piętro.JPG 2020-05-06 08:41:25
- Zdjęcie wejścia do łazienki - I piętro.JPG 2020-05-06 08:41:19
- Zdjęcie wejścia do łazienki - parter.JPG 2020-05-06 08:41:13
- informacja o wyborze najkorzystniejszej oferty.pdf 2020-06-15 09:56:11
- informacja z otwarcia ofert.pdf 2020-06-04 12:47:54
- opis przedmiotu zamówienia.pdf 2020-05-19 13:08:14
- siwz.pdf 2020-05-19 13:04:58
- wzór umowy.pdf 2020-05-19 12:36:01
strona główna
- Dialog techniczny
- Informacja o zamiarze zawarcia umowy
- KONKURS
- Negocjacje bez ogłoszenia
- Ogloszenia o wszczeciu postepowania i SIWZ
- Ogloszenia o wszczeciu postepowania i SIWZ - wszczęte po 6 kwietnia 2020 r.
- Ogloszenia o wyniku
- Postępowania o zawarcie umowy koncesji
- Postępowania unijne (wszczęte po 14.03.2019 r.)
- Postępowania zakupowe - Rządowy Program Odbudowy Zabytków
- Profil nabywcy
- Przedsięwzięcie rewitalizacyjne
- Wstępne konsultacje rynkowe
- Zamówienia do 30 000 Euro
- Zapytania ofertowe poniżej 20.000 PLN